Villa singola in vendita

Martina Franca, Strada Votano
€ 120.000
5 locali 5 locali
185 Mq 185 Mq
1 bagno 1 bagno

Villa singola in vendita

Martina Franca, Strada Votano

Descrizione annuncio

MARTINA FRANCA-STRADA VOTANO

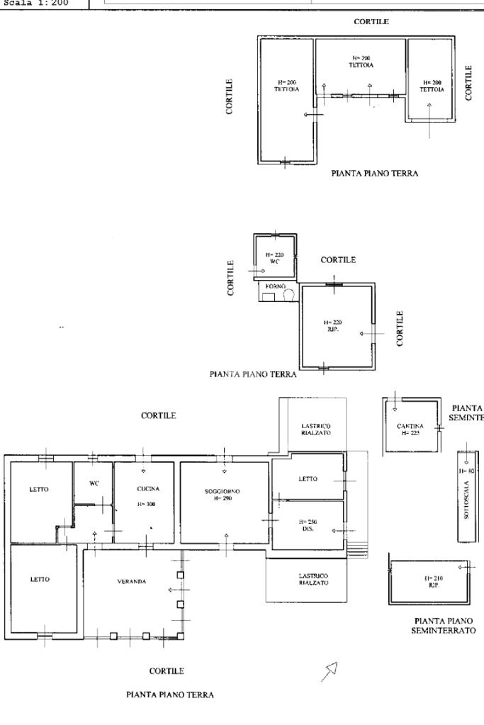
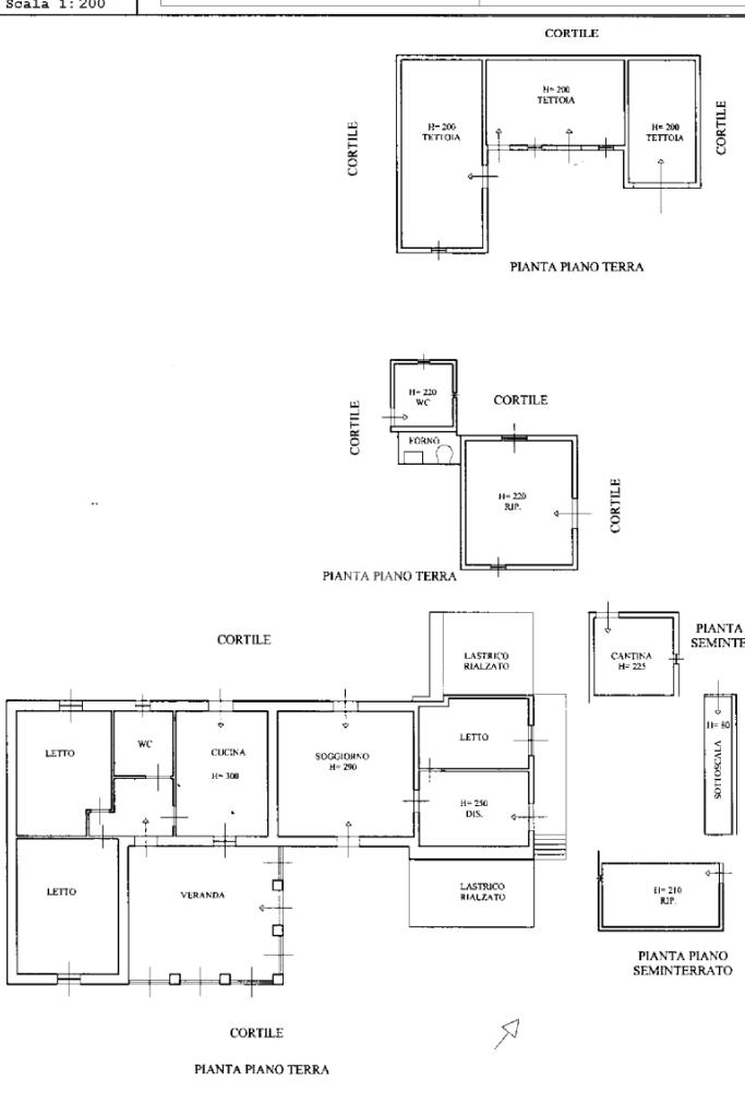
Proponiamo in vendita una villa indipendente di 185mq situata in Strada Votano, a circa 3,5km dal paese, immersa nella tranquillità e circondata da un ampio terreno di circa 2200mq.

L'accesso alla proprietà avviene tramite cancello carrabile che conduce al viale interno e ad un comodo piazzale dove è possibile parcheggiare più auto. L'ingresso principale introduce direttamente nella prima zona giorno, composta da sala da pranzo luminosa con secondo accesso diretto alla parte posteriore della casa, dove troviamo un piccolo forno e un deposito.

Sulla sinistra si sviluppa una seconda zona giorno con cucina su misura e terzo accesso verso l'esterno, che collega nuovamente alla parte retrostante dell'abitazione, rendendo gli spazi estremamente funzionali e ben distribuiti.

Proseguendo troviamo un disimpegno che conduce al bagno con vasca, una veranda molto ampia ideale per realizzare una zona relax o living aggiuntiva, con quarto accesso diretto al piazzale principale della proprietà.

La zona notte è composta da due camere da letto comode e luminose.

A completare la proprietà sono presenti altre due stanze indipendenti, versatili e personalizzabili, dove è possibile realizzare ulteriori camere da letto oppure creare un open space da destinare a zona giorno. Questi ambienti dispongono inoltre di un quinto accesso all'abitazione, offrendo ulteriori possibilità di utilizzo e divisione degli spazi.

Soluzione ideale per chi cerca indipendenza, ampi spazi interni ed esterni e la tranquillità della campagna, senza rinunciare alla vicinanza del paese.

Vieni a trovarci in ufficio siamo in Viale dei Lecci n69, per maggiori informazioni potete contattarci direttamente al numero 3773897643, seguici sui nostri canali social (Whatsapp, Facebook, Instagram, Tik Tok).

Presso la nostra agenzia è possibile, su richiesta, grazie ai professionisti della società di mediazione creditizia del gruppo Kìron ricevere una consulenza ed accedere ad un'ampia gamma di prodotti creditizi e assicurativi.
La consulenza è gratuita.

Mostra tutto

Nelle vicinanze

Trasporto pubblico Trasporto pubblico
stazione di Martina Franca
stazione di Martina Franca
530 m
Trasporto pubblico
170 m
Via Pergolesi
Via Pergolesi
350 m
Colonne Grassi
Colonne Grassi
2,2 Km
Ricariche auto elettriche Ricariche auto elettriche
Eneldrive Presidio Ospedaliero Valle d'Itria
890 m
Enldrive D'Angiò
1,1 Km
Masseria Capece offers a public 11kW charging station
2,9 Km
Scuole Scuole
Istituto Comprensivo Chiarelli
350 m
Istituto Comprensivo Grassi
410 m
I.p.s.s. Alfonso Motolese
450 m
scuola media superiore Giuseppe Grassi
460 m
Istituto Comprensivo Guglielmo Marconi
730 m
Farmacia Farmacia
Farmacia Sorace
370 m
Farmacia Dott.ssa Basile
500 m
Farmacia Semeraro Dr. Eugenio
560 m
FARMAPIÙ
750 m
Farmacia Lembo
770 m
Ospedali Ospedali
Civile di Martina Franca
890 m
Presidio Ospedaliero Valle d'Itria
920 m
Supermercati Supermercati
Carrefour Market
370 m
DOK
800 m
Argento Puro
820 m
Supermercati K
860 m
Supermercati
1,1 Km
Negozi Negozi
Panificio Angelini
240 m
Panificio Sant'Andrea
350 m
M'Amart Store
500 m
Spadolino
670 m
Panetteria St. Lorenzo
730 m
Bar Bar
37 Music Art Cafè
350 m
Bar Il Giglio Drink & Food
460 m
Bis Bar
620 m
MOROLA Caffè Italiano
760 m
Bar
780 m
Ristoranti Ristoranti
Pizzeria San Francesco
40 m
terra terra
130 m
Burrata Bar
150 m
Nausikaa
210 m
Ristoranti
260 m
Mostra tutto

Caratteristiche

Rif.:
61209554
Totale piani:
1
Posti auto:
2
Terrazzi:
1
Camere da letto:
2
Arredamento:
Parziale
Mostra tutto
Prezzo Prezzo
€ 120.000
Rata mutuo Rata mutuo
€ 569 / mese
Proponi il tuo prezzoProponi il tuo prezzo
Immobile valutato con T·Valuta

Classe Energetica

G
G
G
G
G
G
G
G
G
Anno di costruzione:
1970
Riscaldamento:
Autonomo
Tipo impianto:
A radiatori
Tipo alimentazione:
GPL

Ti interessa visionare l'immobile?

Fissa un appuntamento  Fissa un appuntamento

Richiedi informazioni

Clicca su Leggi per aprire l'informativa
* Questi campi sono obbligatori

Calcola il tuo mutuo

Semplice e senza impegno
Anticipo

( % )
Mutuo

( % )

pochi semplici passi

inserisci i tuoi dati
Questionario completato
Grazie per aver richiesto un appuntamento senza impegno con un nostro Consulente del Credito e Assicurativo.

Hai inserito correttamente tutti i dati necessari e a breve riceverai una e-mail con un link da convalidare per inviare i tuoi dati.
Affiliato
Studio Francavilla Srl
Viale Dei Lecci, 69 74015 Martina Franca (TA)

Il nostro staff


  • Francesca Acquaviva
    Coordinatrice

  • Angelo Carbotti
    Collaboratore

  • Giuseppe Corrente
    Collaboratore

  • Marianna Lupo
    Collaboratrice

  • Marco Lotti
    Affiliato
Viale Dei Lecci, 69 74015 Martina Franca (TA)
Zona: Martina Franca
Mostra su mappa
Orari: LUN - VEN 09.00 - 13.00 / 16.00 - 20.00 SAB 09.00 - 13.00
Affiliato
Studio Francavilla Srl
Viale Dei Lecci, 69 74015 Martina Franca (TA)

2026 Tecnocasa Franchising S.p.A. - P. IVA 08365160152 - Via Monte Bianco 60/A 20089 Rozzano (MI). Ogni agenzia ha un proprio titolare ed è autonoma. Privacy policy | Policy utilizzo | Cookie policy