Villa singola in vendita

Martina Franca, Contrada montepelusiello
€ 70.000
5 locali 5 locali
194 Mq 194 Mq
1 bagno 1 bagno

Villa singola in vendita

Martina Franca, Contrada montepelusiello

Descrizione annuncio

MARTINA FRANCA-CONTRADA MONTEPELUSIELLO

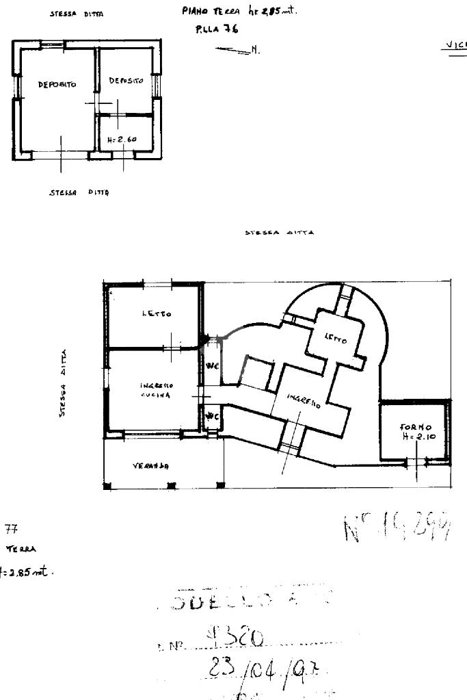
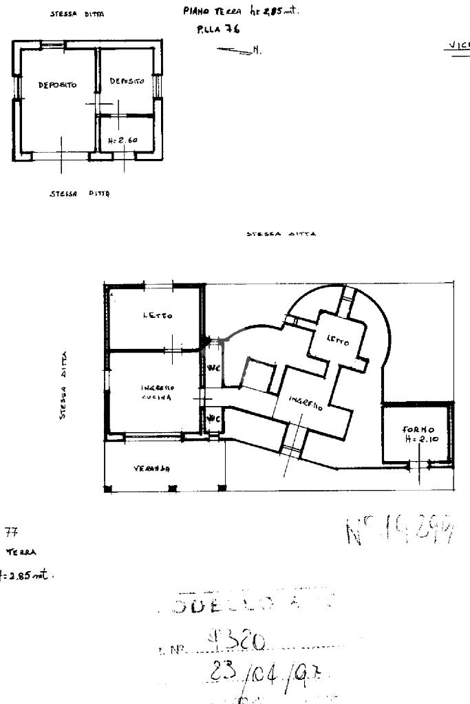
Proponiamo in vendita villa di 194mq totali con un terreno circostante di 13.500mq, a circa 8km dal centro urbano di Martina Franca e 4km dal territorio di Ceglie Messapica.

L'immobile necessita di una buona ristrutturazione con la possibilità di realizzare oltre alla zona giorno comoda, fino a quattro camere da letto con ulteriori bagni, l'immobile si presta come ottima struttura ricettiva o per una famiglia che vuole vivere in grandi spazi.

Completa l'abitazione un corpo di trulli, un deposito ed infine una lamia.

Vieni a trovarci in ufficio, siamo a Martina Franca in Via Bellini, 43 per maggiori informazioni oppure contattaci su WHATSAPP AL NUMERO 3773897643 per ricevere maggiori informazioni e fissare un appuntamento

Scaricate la nostra App GRATUITAMENTE sul Vostro Smartphone per restare aggiornati sulle Nostre proposte e visitate le nostre proposte su Martina Franca.

Presso la nostra agenzia è possibile, su richiesta, grazie ai professionisti della società di mediazione creditizia del gruppo Kìron ricevere una consulenza ed accedere ad un'ampia gamma di prodotti creditizi e assicurativi.
La consulenza è gratuita.

Mostra tutto

Nelle vicinanze

Trasporto pubblico Trasporto pubblico
stazione di Martina Franca
stazione di Martina Franca
710 m
Trasporto pubblico
130 m
Piazza Cristo Re
Piazza Cristo Re
200 m
Colonne Grassi
Colonne Grassi
2,1 Km
Ricariche auto elettriche Ricariche auto elettriche
Eneldrive Presidio Ospedaliero Valle d'Itria
420 m
Enldrive D'Angiò
470 m
Scuole Scuole
scuola superiore di secondo grado Tito Livio
160 m
Scuola Media Inferiore e superiore Amedeo d'Aosta
170 m
Istituto Comprensivo Guglielmo Marconi
200 m
Scuola Elementare Giovanni XXIII
450 m
scuola media superiore Giuseppe Grassi
580 m
Farmacia Farmacia
Farmacia Semeraro Dr. Eugenio
90 m
Farmacia Lembo
210 m
Farmacia Recchia
300 m
Farmacia Dott.ssa Basile
310 m
FARMAPIÙ
310 m
Ospedali Ospedali
Civile di Martina Franca
470 m
Presidio Ospedaliero Valle d'Itria
500 m
Supermercati Supermercati
DOK
450 m
Supermercati K
520 m
Argento Puro
530 m
Supermercati
850 m
Carrefour Market
910 m
Negozi Negozi
M'Amart Store
110 m
Spadolino
230 m
Panificio Angelini
480 m
Panetteria St. Lorenzo
590 m
Panificio Sant'Andrea
880 m
Bar Bar
Bis Bar
20 m
Bar
220 m
Bar Il Giglio Drink & Food
280 m
Oriental Bar
300 m
37 Music Art Cafè
350 m
Ristoranti Ristoranti
Fish & Chips
80 m
Istanbul Doner
190 m
La Piccola Lanterna
320 m
Osteria del Coco Pazzo
330 m
Scacciapensieri
360 m
Mostra tutto

Caratteristiche

Rif.:
61044858
Piano:
Terra con giardino di 1
Totale piani:
1
Posti auto:
2
Camere da letto:
4
Arredamento:
Assente
Mostra tutto
Prezzo Prezzo
€ 70.000
Rata mutuo Rata mutuo
€ 332 / mese
Proponi il tuo prezzoProponi il tuo prezzo

Classe Energetica

Questo immobile è esente da classe energetica
Anno di costruzione:
1967
Riscaldamento:
Assente

Ti interessa visionare l'immobile?

Fissa un appuntamento  Fissa un appuntamento

Richiedi informazioni

Clicca su Leggi per aprire l'informativa
* Questi campi sono obbligatori

Calcola il tuo mutuo

Semplice e senza impegno
Anticipo

( % )
Mutuo

( % )

pochi semplici passi

inserisci i tuoi dati
Questionario completato
Grazie per aver richiesto un appuntamento senza impegno con un nostro Consulente del Credito e Assicurativo.

Hai inserito correttamente tutti i dati necessari e a breve riceverai una e-mail con un link da convalidare per inviare i tuoi dati.
Affiliato
Studio Francavilla Srl
Viale Dei Lecci, 69 74015 Martina Franca (TA)

Il nostro staff


  • Francesca Acquaviva
    Coordinatrice

  • Angelo Carbotti
    Collaboratore

  • Giuseppe Corrente
    Collaboratore

  • Marianna Lupo
    Collaboratrice

  • Marco Lotti
    Affiliato
Viale Dei Lecci, 69 74015 Martina Franca (TA)
Zona: Martina Franca
Mostra su mappa
Orari: LUN - VEN 09.00 - 13.00 / 16.00 - 20.00 SAB 09.00 - 13.00
Affiliato
Studio Francavilla Srl
Viale Dei Lecci, 69 74015 Martina Franca (TA)

2026 Tecnocasa Franchising S.p.A. - P. IVA 08365160152 - Via Monte Bianco 60/A 20089 Rozzano (MI). Ogni agenzia ha un proprio titolare ed è autonoma. Privacy policy | Policy utilizzo | Cookie policy