Rustico in vendita

Martina Franca, Strada Tagliente
€ 48.000
4 locali 4 locali
190 Mq 190 Mq
1 bagno 1 bagno

Rustico in vendita

Martina Franca, Strada Tagliente

Descrizione annuncio

MARTINA FRANCA-CONTRADA SAN PAOLO

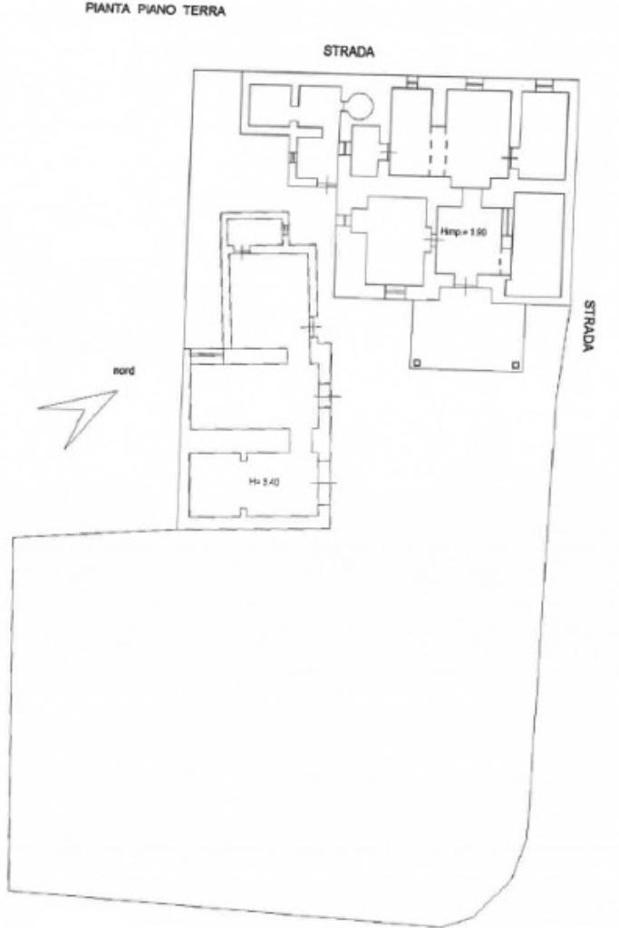
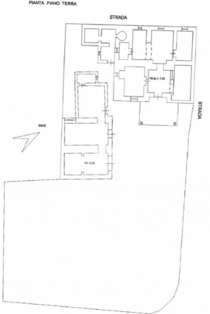
Proponiamo in vendita due unità abitative indipendenti composte da abitazione principale parzialmente ristrutturata e caratteristico trullo a tre coni da completare, per una metratura complessiva catastale di circa 190mq. La proprietà è circondata da un terreno di circa 5822mq, ideale per chi desidera privacy e ampi spazi esterni.

L'abitazione principale, internamente già in parte ristrutturata, presenta l'ingresso come zona relax con soggiorno. Sulla sinistra si sviluppano altre due stanze, di cui una adatta ad accogliere cucina e sala da pranzo, mentre l'altra può essere facilmente destinata a camera da letto. Sulla destra troviamo invece un bagno con sanitari e doccia, funzionale e già utilizzabile.

Accanto all'abitazione si trova il caratteristico trullo a tre coni. Strutturalmente i coni sono stati ristrutturati, mentre gli interni necessitano di lavori di completamento, offrendo la possibilità di personalizzare completamente gli spazi. Grazie alla buona distribuzione interna, il trullo consente di realizzare due camere da letto, una zona giorno e un bagno, rendendolo ideale sia come seconda unità abitativa sia come soluzione ricettiva.

La proprietà rappresenta un'ottima opportunità per chi è alla ricerca di una soluzione con doppia unità, perfetta per uso familiare, investimento o attività turistico-ricettiva, immersa nella tranquillità della campagna e con ampio terreno di pertinenza.

Vieni a trovarci in ufficio siamo in Viale dei Lecci n69, per maggiori informazioni potete contattarci direttamente al numero 3773897643, seguici sui nostri canali social (Whatsapp, Facebook, Instagram, Tik Tok).

Presso la nostra agenzia è possibile, su richiesta, grazie ai professionisti della società di mediazione creditizia del gruppo Kìron ricevere una consulenza ed accedere ad un'ampia gamma di prodotti creditizi e assicurativi.
La consulenza è gratuita.

Mostra tutto

Nelle vicinanze

Trasporto pubblico Trasporto pubblico
San Paolo
San Paolo
1,4 Km
Trasporto pubblico
1,4 Km
Scuole Scuole
Scuola Elementare San Paolo
870 m
Farmacia Farmacia
Farmacia Virtù
1,2 Km
Mostra tutto

Caratteristiche

Rif.:
61207390
Piano:
1 di 1 (Piano terra con giardino)
Posti auto:
2
Camere da letto:
2
Arredamento:
Assente
Condizionamento:
Assente
Mostra tutto
Prezzo Prezzo
€ 48.000
Rata mutuo Rata mutuo
€ 227 / mese
Proponi il tuo prezzoProponi il tuo prezzo

Classe Energetica

G
G
G
G
G
G
G
G
G
EP invernale del fabbricato:
EP estiva del fabbricato:
Anno di costruzione:
1950
Riscaldamento:
Assente

Ti interessa visionare l'immobile?

Fissa un appuntamento  Fissa un appuntamento

Richiedi informazioni

Clicca su Leggi per aprire l'informativa
* Questi campi sono obbligatori

Calcola il tuo mutuo

Semplice e senza impegno
Anticipo

( % )
Mutuo

( % )

pochi semplici passi

inserisci i tuoi dati
Questionario completato
Grazie per aver richiesto un appuntamento senza impegno con un nostro Consulente del Credito e Assicurativo.

Hai inserito correttamente tutti i dati necessari e a breve riceverai una e-mail con un link da convalidare per inviare i tuoi dati.
Affiliato
Studio Francavilla Srl
Viale Dei Lecci, 69 74015 Martina Franca (TA)

Il nostro staff


  • Francesca Acquaviva
    Coordinatrice

  • Angelo Carbotti
    Collaboratore

  • Giuseppe Corrente
    Collaboratore

  • Marianna Lupo
    Collaboratrice

  • Marco Lotti
    Affiliato
Viale Dei Lecci, 69 74015 Martina Franca (TA)
Zona: Martina Franca
Mostra su mappa
Orari: LUN - VEN 09.00 - 13.00 / 16.00 - 20.00 SAB 09.00 - 13.00
Affiliato
Studio Francavilla Srl
Viale Dei Lecci, 69 74015 Martina Franca (TA)

2026 Tecnocasa Franchising S.p.A. - P. IVA 08365160152 - Via Monte Bianco 60/A 20089 Rozzano (MI). Ogni agenzia ha un proprio titolare ed è autonoma. Privacy policy | Policy utilizzo | Cookie policy