Casa indipendente in vendita

Martina Franca, Via Giannini
€ 82.000
3 locali 3 locali
86 Mq 86 Mq
2 bagni 2 bagni

Casa indipendente in vendita

Martina Franca, Via Giannini

Descrizione annuncio

MARTINA FRANCA-VIA GIANNINI

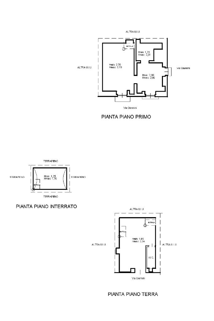
Nel cuore del centro storico, in via Giannini, proponiamo in vendita una caratteristica casa indipendente composta da due unità abitative separate, ideale sia come soluzione per due nuclei familiari sia come investimento per locazioni turistiche.

La prima abitazione, situata al piano rialzato, ha una superficie di circa 86mq ed è accessibile tramite una piccola rampa di scale esterna. L'ingresso conduce direttamente nella luminosa zona giorno con angolo cottura, sala da pranzo e un grazioso camino che dona calore e atmosfera all'ambiente. La zona notte comprende una camera da letto e un bagno finestrato con doccia.

Al piano terra si trova la seconda unità, un accogliente monolocale di circa 27mq, composto da un unico ambiente con divano letto, angolo cottura e zona pranzo, oltre a un piccolo bagno con vasca.

Completa la proprietà una piccola cantina al piano inferiore, utile come spazio di deposito.

Soluzione unica nel suo genere, perfetta per chi desidera vivere nel fascino del centro storico con la comodità di avere due spazi indipendenti.

Presso la nostra agenzia è possibile, su richiesta, grazie ai professionisti della società di mediazione creditizia del gruppo Kìron, ricevere una consulenza ed accedere ad un'ampia gamma di prodotti creditizi e assicurativi.
La consulenza è gratuita

Vieni a trovarci in ufficio,siamo a Martina Franca in Via Bellini, 43 per maggiori informazioni oppure contattaci su WHATSAPP AL NUMERO 3773897643 per ricevere maggiori informazioni.

Mostra tutto

Nelle vicinanze

Trasporto pubblico Trasporto pubblico
stazione di Martina Franca
stazione di Martina Franca
720 m
Trasporto pubblico
120 m
Via Pergolesi
Via Pergolesi
330 m
Colonne Grassi
Colonne Grassi
2,3 Km
Ricariche auto elettriche Ricariche auto elettriche
Eneldrive Presidio Ospedaliero Valle d'Itria
470 m
Enldrive D'Angiò
690 m
Scuole Scuole
scuola superiore di secondo grado Tito Livio
410 m
Scuola Media Inferiore e superiore Amedeo d'Aosta
420 m
Istituto Comprensivo Guglielmo Marconi
440 m
Scuola Elementare Giovanni XXIII
510 m
Istituto Comprensivo Chiarelli
510 m
Farmacia Farmacia
Farmacia Dott.ssa Basile
110 m
Farmacia Semeraro Dr. Eugenio
170 m
FARMAPIÙ
330 m
Farmacia Sorace
340 m
Farmacia Lembo
350 m
Ospedali Ospedali
Civile di Martina Franca
480 m
Presidio Ospedaliero Valle d'Itria
510 m
Supermercati Supermercati
Supermercati K
470 m
DOK
650 m
Argento Puro
710 m
Carrefour Market
780 m
Supermercati
1,0 Km
Negozi Negozi
M'Amart Store
190 m
Panificio Angelini
240 m
Spadolino
250 m
Panetteria St. Lorenzo
720 m
Panificio Sant'Andrea
750 m
Bar Bar
Bar Il Giglio Drink & Food
50 m
37 Music Art Cafè
100 m
Bis Bar
280 m
Bar
370 m
Oriental Bar
550 m
Ristoranti Ristoranti
Istanbul Doner
120 m
Scacciapensieri
150 m
Pane Amore e Fantasia
150 m
La Tavolaccia
160 m
Ristorante Garibaldi
170 m
Mostra tutto

Caratteristiche

Rif.:
61179111
Piano:
1 di 1 (Piano medio)
Balconi:
2
Camere da letto:
1
Arredamento:
Completo
Condizionamento:
Assente
Mostra tutto
Prezzo Prezzo
€ 82.000
Rata mutuo Rata mutuo
€ 389 / mese
Proponi il tuo prezzoProponi il tuo prezzo
Immobile valutato con T·Valuta

Classe Energetica

G
G
G
G
G
G
G
G
G
Anno di costruzione:
1900
Riscaldamento:
Assente

Ti interessa visionare l'immobile?

Fissa un appuntamento  Fissa un appuntamento

Richiedi informazioni

Clicca su Leggi per aprire l'informativa
* Questi campi sono obbligatori

Calcola il tuo mutuo

Semplice e senza impegno
Anticipo

( % )
Mutuo

( % )

pochi semplici passi

inserisci i tuoi dati
Questionario completato
Grazie per aver richiesto un appuntamento senza impegno con un nostro Consulente del Credito e Assicurativo.

Hai inserito correttamente tutti i dati necessari e a breve riceverai una e-mail con un link da convalidare per inviare i tuoi dati.
Affiliato
Studio Francavilla Srl
Viale Dei Lecci, 69 74015 Martina Franca (TA)

Il nostro staff


  • Francesca Acquaviva
    Coordinatrice

  • Angelo Carbotti
    Collaboratore

  • Giuseppe Corrente
    Collaboratore

  • Marianna Lupo
    Collaboratrice

  • Marco Lotti
    Affiliato
Viale Dei Lecci, 69 74015 Martina Franca (TA)
Zona: Martina Franca
Mostra su mappa
Orari: LUN - VEN 09.00 - 13.00 / 16.00 - 20.00 SAB 09.00 - 13.00
Affiliato
Studio Francavilla Srl
Viale Dei Lecci, 69 74015 Martina Franca (TA)

2026 Tecnocasa Franchising S.p.A. - P. IVA 08365160152 - Via Monte Bianco 60/A 20089 Rozzano (MI). Ogni agenzia ha un proprio titolare ed è autonoma. Privacy policy | Policy utilizzo | Cookie policy