Casa indipendente in vendita

Martina Franca, Via Ceglie
€ 59.000
4 locali 4 locali
100 Mq 100 Mq
1 bagno 1 bagno

Casa indipendente in vendita

Martina Franca, Via Ceglie

Descrizione annuncio

MARTINA FRANCA-VIA CEGLIE

Proponiamo in vendita una villa indipendente di circa 100mq in via Ceglie, a soli 500 metri dal centro abitato, in contesto tranquillo e riservato.

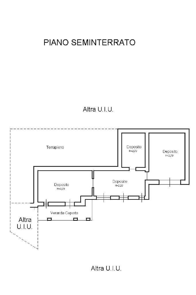
L'immobile si apre su una prima stanza adibita a zona giorno con camino. Segue una seconda stanza luminosa e finestrata con pavimentazione in chianche. Proseguendo troviamo un piccolo deposito con secondo accesso indipendente, il bagno principale finestrato con vasca e termosifoni presenti in ogni ambiente.

Dalla zona giorno si accede alla zona notte composta da due camere da letto, di cui una con piccola cabina armadio.

Esternamente la proprietà è circondata da un terreno di circa 1000mq con diversi alberi da frutto. E' presente una seconda porzione di fabbricato con possibilità di realizzare una seconda abitazione oppure collegare i due piani tramite scala interna. Completano la proprietà un pollaio, un garage e un terrazzino a livello con vista panoramica sulla Valle d'Itria e Locorotondo.

L'immobile è completamente da ristrutturare, ideale per chi desidera personalizzare gli spazi e valorizzare una posizione panoramica a breve distanza dal centro.

Sono presenti due cisterne per la raccolta dell'acqua e vi è la possibilità di fare l'allaccio all'Acquedotto Pugliese.

Vieni a trovarci in ufficio, siamo a Martina Franca in Via Bellini, 43 per maggiori informazioni oppure contattaci su WHATSAPP AL NUMERO 3773897643 per ricevere maggiori informazioni e fissare un appuntamento.

Presso la nostra agenzia è possibile, su richiesta, grazie ai professionisti della società di mediazione creditizia del gruppo Kìron ricevere una consulenza ed accedere ad un'ampia gamma di prodotti creditizi e assicurativi.
La consulenza è gratuita.

Mostra tutto

Nelle vicinanze

Trasporto pubblico Trasporto pubblico
stazione di Martina Franca
stazione di Martina Franca
1,6 Km
Trasporto pubblico
950 m
Piazza Cristo Re
Piazza Cristo Re
1,0 Km
Colonne Grassi
Colonne Grassi
2,4 Km
Ricariche auto elettriche Ricariche auto elettriche
Enldrive D'Angiò
530 m
Eneldrive Presidio Ospedaliero Valle d'Itria
740 m
Scuole Scuole
Scuola Elementare Giovanni XXIII
700 m
Scuola Media Inferiore e superiore Amedeo d'Aosta
820 m
scuola superiore di secondo grado Tito Livio
840 m
Istituto Comprensivo Guglielmo Marconi
940 m
scuola media superiore Giuseppe Grassi
1,5 Km
Farmacia Farmacia
Farmacia Lembo
800 m
Farmacia Ospedaliera
830 m
Farmacia Recchia
840 m
FARMAPIÙ
860 m
Farmacia Semeraro Dr. Eugenio
1,0 Km
Ospedali Ospedali
Presidio Ospedaliero Valle d'Itria
770 m
Civile di Martina Franca
790 m
Supermercati Supermercati
Supermercati K
900 m
DOK
1,1 Km
Argento Puro
1,2 Km
Supermercati
1,4 Km
Carrefour Market
1,9 Km
Negozi Negozi
Spadolino
910 m
M'Amart Store
1,1 Km
Panetteria St. Lorenzo
1,4 Km
Panificio Angelini
1,4 Km
Panificio Sant'Andrea
1,9 Km
Bar Bar
Gelida Gelati
350 m
Bar
790 m
Oriental Bar
810 m
Saint Martin
950 m
Bis Bar
960 m
Ristoranti Ristoranti
La Piccola Lanterna
660 m
Fish & Chips
930 m
Istanbul Doner
1,0 Km
Osteria del Coco Pazzo
1,3 Km
Scacciapensieri
1,3 Km
Mostra tutto

Caratteristiche

Rif.:
61162684
Piano:
Basso di 2
Totale piani:
2
Posti auto:
1
Terrazzi:
1
Camere da letto:
2
Mostra tutto
Prezzo Prezzo
€ 59.000
Rata mutuo Rata mutuo
€ 278 / mese
Proponi il tuo prezzoProponi il tuo prezzo

Classe Energetica

G
G
G
G
G
G
G
G
G
Anno di costruzione:
1970
Riscaldamento:
Autonomo
Tipo impianto:
A radiatori
Tipo alimentazione:
Metano

Ti interessa visionare l'immobile?

Fissa un appuntamento  Fissa un appuntamento

Richiedi informazioni

Clicca su Leggi per aprire l'informativa
* Questi campi sono obbligatori

Calcola il tuo mutuo

Semplice e senza impegno
Anticipo

( % )
Mutuo

( % )

pochi semplici passi

inserisci i tuoi dati
Questionario completato
Grazie per aver richiesto un appuntamento senza impegno con un nostro Consulente del Credito e Assicurativo.

Hai inserito correttamente tutti i dati necessari e a breve riceverai una e-mail con un link da convalidare per inviare i tuoi dati.
Affiliato
Studio Francavilla Srl
Via Vincenzo Bellini, 43 74015 Martina Franca (TA)

Il nostro staff


  • Francesca Acquaviva
    Coordinatrice

  • Angelo Carbotti
    Collaboratore

  • Giuseppe Corrente
    Collaboratore

  • Marco Lotti
    Affiliato
Via Vincenzo Bellini, 43 74015 Martina Franca (TA)
Zona: Martina Franca
Mostra su mappa
Orari: LUN - VEN 09.00 - 13.00 / 16.00 - 20.00 SAB 09.00 - 13.00
Affiliato
Studio Francavilla Srl
Via Vincenzo Bellini, 43 74015 Martina Franca (TA)

2026 Tecnocasa Franchising S.p.A. - P. IVA 08365160152 - Via Monte Bianco 60/A 20089 Rozzano (MI). Ogni agenzia ha un proprio titolare ed è autonoma. Privacy policy | Policy utilizzo | Cookie policy