Trilocale in vendita

Martina Franca, Via Giovanni Simonetti
€ 120.000
3 locali 3 locali
80 Mq 80 Mq
2 bagni 2 bagni

Trilocale in vendita

Martina Franca, Via Giovanni Simonetti

Descrizione annuncio

MARTINA FRANCA-VIA GIOVANNI SIMONETTI

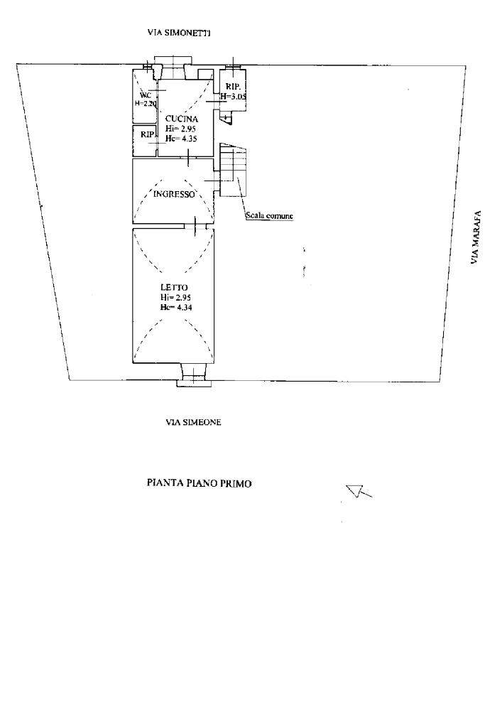
A pochi passi dal Comune e dalla piazza principale, proponiamo in vendita casa semi-indipendente di circa 80mq catastali, ideale sia come abitazione principale che come investimento.

L'immobile dispone di ingresso da portone con accesso semi-indipendente e rampa di scale che conduce direttamente all'abitazione. All'interno troviamo una prima zona giorno, dalla quale si accede:

-sulla sinistra ad un'ampia camera da letto, attualmente con tre posti letto (matrimoniale + due singoli) e balconcino.

-sulla destra alla sala da pranzo con angolo cottura, anch'essa dotata di balconcino.

La soluzione è completata da due bagni ristrutturati, uno di servizio e uno con doccia, oltre ad un comodo ripostiglio.

Dal ripostiglio, tramite scala interna, si accede al terrazzo di esclusiva proprietà, dotato di pannelli solari, perfetto come spazio esterno da vivere.

Ottima posizione centrale, ambienti luminosi e indipendenza rendono questa soluzione particolarmente interessante.

Vieni a trovarci in ufficio siamo in Viale dei Lecci n69, per maggiori informazioni potete contattarci direttamente al numero 3773897643, seguici sui nostri canali social (Whatsapp, Facebook, Instagram, Tik Tok).

Presso la nostra agenzia è possibile, su richiesta, grazie ai professionisti della società di mediazione creditizia del gruppo Kìron ricevere una consulenza ed accedere ad un'ampia gamma di prodotti creditizi e assicurativi.
La consulenza è gratuita.

Mostra tutto

Nelle vicinanze

Trasporto pubblico Trasporto pubblico
stazione di Martina Franca
stazione di Martina Franca
880 m
Trasporto pubblico
100 m
Via Pergolesi
Via Pergolesi
230 m
Colonne Grassi
Colonne Grassi
2,4 Km
Ricariche auto elettriche Ricariche auto elettriche
Eneldrive Presidio Ospedaliero Valle d'Itria
460 m
Enldrive D'Angiò
800 m
Scuole Scuole
Istituto Comprensivo Chiarelli
430 m
Scuola Elementare Giovanni XXIII
500 m
I.p.s.s. Alfonso Motolese
530 m
Scuola Media Inferiore e superiore Amedeo d'Aosta
560 m
scuola superiore di secondo grado Tito Livio
560 m
Farmacia Farmacia
Farmacia Dott.ssa Basile
110 m
Farmacia Sorace
230 m
Farmacia Semeraro Dr. Eugenio
330 m
FARMAPIÙ
330 m
Farmacia Ospedaliera
400 m
Ospedali Ospedali
Civile di Martina Franca
440 m
Presidio Ospedaliero Valle d'Itria
460 m
Supermercati Supermercati
Supermercati K
380 m
DOK
840 m
Carrefour Market
860 m
Argento Puro
910 m
Supermercati
1,2 Km
Negozi Negozi
Panificio Angelini
250 m
Spadolino
300 m
M'Amart Store
380 m
Panificio Sant'Andrea
830 m
Panetteria St. Lorenzo
910 m
Bar Bar
Bar Il Giglio Drink & Food
150 m
37 Music Art Cafè
170 m
Bis Bar
440 m
Bar
450 m
Oriental Bar
710 m
Ristoranti Ristoranti
Ristorante San Domenico
200 m
Pane Amore e Fantasia
200 m
Ristorante Garibaldi
210 m
La Tavolaccia
220 m
Macelleria da Ricci
220 m
Mostra tutto

Caratteristiche

Rif.:
61209572
Piano:
1 di 1 (Piano basso)
Balconi:
2
Terrazzi:
1
Camere da letto:
1
Arredamento:
Completo
Mostra tutto
Prezzo Prezzo
€ 120.000
Rata mutuo Rata mutuo
€ 569 / mese
Proponi il tuo prezzoProponi il tuo prezzo

Classe Energetica

G
G
G
G
G
G
G
G
G
Anno di costruzione:
1990
Riscaldamento:
Autonomo
Tipo impianto:
Ad aria
Tipo alimentazione:
Pannelli

Ti interessa visionare l'immobile?

Fissa un appuntamento  Fissa un appuntamento

Richiedi informazioni

Clicca su Leggi per aprire l'informativa
* Questi campi sono obbligatori

Calcola il tuo mutuo

Semplice e senza impegno
Anticipo

( % )
Mutuo

( % )

pochi semplici passi

inserisci i tuoi dati
Questionario completato
Grazie per aver richiesto un appuntamento senza impegno con un nostro Consulente del Credito e Assicurativo.

Hai inserito correttamente tutti i dati necessari e a breve riceverai una e-mail con un link da convalidare per inviare i tuoi dati.
Affiliato
Studio Francavilla Srl
Viale Dei Lecci, 69 74015 Martina Franca (TA)

Il nostro staff


  • Francesca Acquaviva
    Coordinatrice

  • Angelo Carbotti
    Collaboratore

  • Giuseppe Corrente
    Collaboratore

  • Marianna Lupo
    Collaboratrice

  • Marco Lotti
    Affiliato
Viale Dei Lecci, 69 74015 Martina Franca (TA)
Zona: Martina Franca
Mostra su mappa
Orari: LUN - VEN 09.00 - 13.00 / 16.00 - 20.00 SAB 09.00 - 13.00
Affiliato
Studio Francavilla Srl
Viale Dei Lecci, 69 74015 Martina Franca (TA)

2026 Tecnocasa Franchising S.p.A. - P. IVA 08365160152 - Via Monte Bianco 60/A 20089 Rozzano (MI). Ogni agenzia ha un proprio titolare ed è autonoma. Privacy policy | Policy utilizzo | Cookie policy