Multilocale in vendita

Martina Franca, Via Massafra
€ 380.000
6 locali 6 locali
544 Mq 544 Mq
1 bagno 1 bagno

Multilocale in vendita

Martina Franca, Via Massafra

Descrizione annuncio

MARTINA FRANCA-VIA MASSAFRA

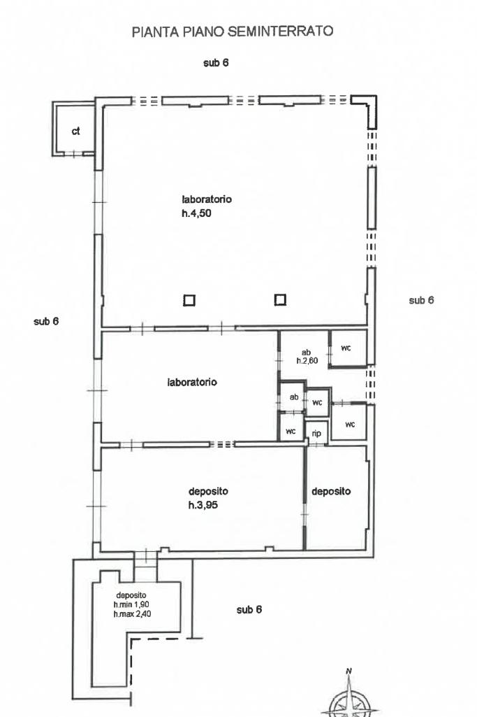
Proponiamo in vendita un ampio complesso immobiliare che comprende un locale artigianale, locale deposito con piazzale e una piccola abitazione ideale per diverse soluzioni abitative e commerciali.

L'abitazione di circa 80mq è caratterizzata da:

-Ingresso con piccola zona giorno.

-Cucinino.

-Due camere da letto, con possibilità di ricavare una cabina armadio.

-Bagno da realizzare.

-Secondo accesso che consente la possibilità di suddividere l'immobile in due unità abitative.

Locale artigianale di circa 340mq è caratterizzato da:

-Spazi molto ampi e versatili.

-Attualmente adibito a scuola di ballo.

-Ideale per attività artigianali, commerciali o ricreative

Principali possibilità di attività per locali artigianali:

Laboratori di produzione artigianale= falegnameria, sartoria, officina, meccanica leggera, tappezzeria, ceramica, lavorazione metalli, panificazione, pasticceria, gelateria.

Attività di trasformarzione= cucine di catering, microbirrifici, torrefazioni.

Servizi artigianali= parrucchieri, barbieri, estetisti, tatuatori, calzolai, lavanderie.

Spazi creativi e artistici= studi di pittura, scultura, fotografia, laboratori teatrali o musicali.

Locale deposito di circa 140mq caratterizzato da:

-Ampia superficie coperta.

-Piazzale antistante di generose dimensioni, ideale per carico/scarico o parcheggio.

-Dotato di piccolo bagno.

La proprietà è inoltre accessoriata con cancello elettrico e impianto di allarme, garantendo comodità e lavoro in un unico contesto.

Scaricate la nostra App GRATUITAMENTE sul Vostro Smartphone per restare aggiornati sulle Nostre proposte e visitate le nostre proposte su Martina Franca.

Vieni a trovarci in ufficio, siamo a Martina Franca in Via Bellini, 43 per maggiori informazioni oppure contattaci su WHATSAPP AL NUMERO 3773897643 per ricevere maggiori informazioni e fissare un appuntamento

Mostra tutto

Nelle vicinanze

Trasporto pubblico Trasporto pubblico
stazione di Martina Franca
stazione di Martina Franca
260 m
Trasporto pubblico
380 m
Via Pergolesi
Via Pergolesi
710 m
Colonne Grassi
Colonne Grassi
2,0 Km
Ricariche auto elettriche Ricariche auto elettriche
Eneldrive Presidio Ospedaliero Valle d'Itria
1,1 Km
Enldrive D'Angiò
1,2 Km
Scuole Scuole
Istituto Comprensivo Grassi
190 m
scuola media superiore Giuseppe Grassi
280 m
Istituto Comprensivo Chiarelli
690 m
I.p.s.s. Alfonso Motolese
770 m
Istituto Comprensivo Guglielmo Marconi
800 m
Farmacia Farmacia
Farmacia Sorace
720 m
Farmacia Semeraro Dr. Eugenio
750 m
Farmacia Dott.ssa Basile
780 m
Farmacia Recchia
930 m
Farmacia Lembo
960 m
Ospedali Ospedali
Civile di Martina Franca
1,2 Km
Presidio Ospedaliero Valle d'Itria
1,2 Km
Supermercati Supermercati
Carrefour Market
210 m
Argento Puro
720 m
DOK
750 m
Supermercati
930 m
Supermercati K
1,2 Km
Negozi Negozi
Panificio Sant'Andrea
180 m
Panificio Angelini
570 m
Panetteria St. Lorenzo
580 m
M'Amart Store
660 m
Spadolino
910 m
Bar Bar
MOROLA Caffè Italiano
590 m
37 Music Art Cafè
640 m
Florien
710 m
Bar Il Giglio Drink & Food
730 m
Bis Bar
770 m
Ristoranti Ristoranti
Ristoranti
200 m
Pizzeria San Francesco
350 m
Osteria del Coco Pazzo
480 m
terra terra
490 m
Burrata Bar
510 m
Mostra tutto

Caratteristiche

Rif.:
61104806
Piano:
Terra con giardino di 2
Totale piani:
2
Posti auto:
2
Camere da letto:
2
Arredamento:
Assente
Mostra tutto
Prezzo Prezzo
€ 380.000
Rata mutuo Rata mutuo
€ 1.801 / mese
Proponi il tuo prezzoProponi il tuo prezzo

Classe Energetica

G
G
G
G
G
G
G
G
G
Anno di costruzione:
1990
Riscaldamento:
Assente

Ti interessa visionare l'immobile?

Fissa un appuntamento  Fissa un appuntamento

Richiedi informazioni

Clicca su Leggi per aprire l'informativa
* Questi campi sono obbligatori

Calcola il tuo mutuo

Semplice e senza impegno
Anticipo

( % )
Mutuo

( % )

pochi semplici passi

inserisci i tuoi dati
Questionario completato
Grazie per aver richiesto un appuntamento senza impegno con un nostro Consulente del Credito e Assicurativo.

Hai inserito correttamente tutti i dati necessari e a breve riceverai una e-mail con un link da convalidare per inviare i tuoi dati.
Affiliato
Studio Francavilla Srl
Viale Dei Lecci, 69 74015 Martina Franca (TA)

Il nostro staff


  • Francesca Acquaviva
    Coordinatrice

  • Angelo Carbotti
    Collaboratore

  • Giuseppe Corrente
    Collaboratore

  • Marianna Lupo
    Collaboratrice

  • Marco Lotti
    Affiliato
Viale Dei Lecci, 69 74015 Martina Franca (TA)
Zona: Martina Franca
Mostra su mappa
Orari: LUN - VEN 09.00 - 13.00 / 16.00 - 20.00 SAB 09.00 - 13.00
Affiliato
Studio Francavilla Srl
Viale Dei Lecci, 69 74015 Martina Franca (TA)

2026 Tecnocasa Franchising S.p.A. - P. IVA 08365160152 - Via Monte Bianco 60/A 20089 Rozzano (MI). Ogni agenzia ha un proprio titolare ed è autonoma. Privacy policy | Policy utilizzo | Cookie policy